Amity Road, Reading, RG1 3LN
£360,000
Property Summary
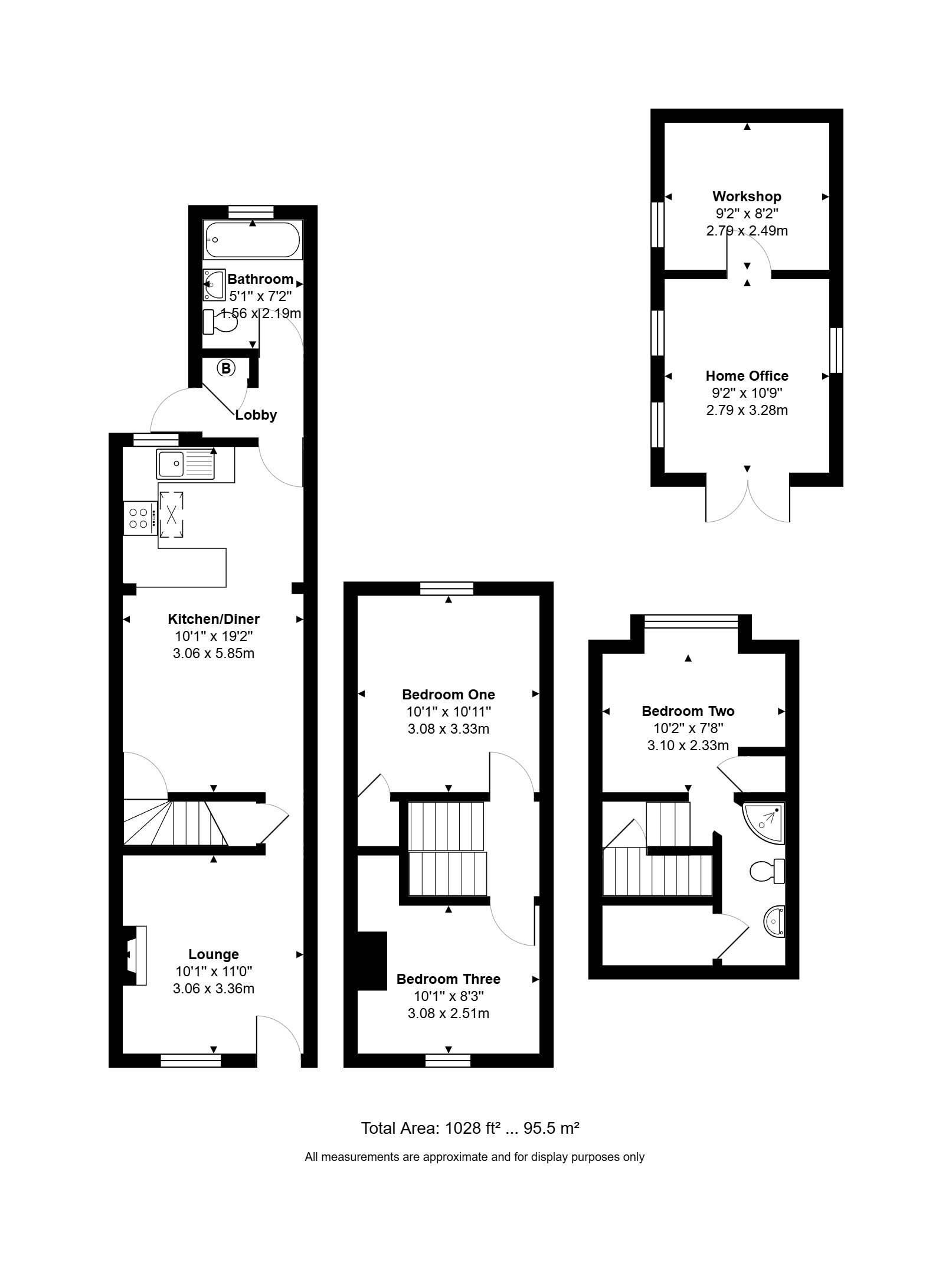
Lansley - Offered to the market is this, in our opinion, very well presented mid terrace home located in the sought after Newtown are of Reading. The internal accommodation comprises front aspect lounge, wonderful open plan kitchen/breakfast room, refitted three piece family bathroom, two bedrooms on the first floor and a further bedroom with ensuite shower on the second floor. Externally to the rear is a pleasant and private garden laid mainly to lawn with a summer house currently used as storage and a workshop but with lighting and power connected would make an excellent home office. Amity Road is conveniently located within easy access of Thames Valley Business Park, A329m, regular bus routes in to Reading town centre, Reading University and Royal Berkshire Hospital.























