Blenheim Gardens, Reading, RG1 5QJ

£260,000
  • Ref: ALA250333
  • Type: Terraced House
  • Availability: Under Offer
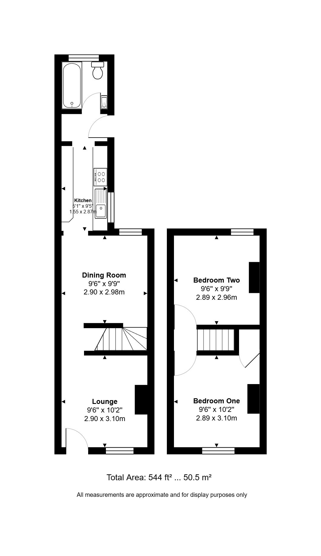
  • Bedrooms: 2
  • Bathrooms: 1
  • Reception Rooms: 2
  • Tenure: Freehold
  • Make Enquiry
  • Floorplan
  • View EPC
  • Virtual Tour

Property Summary

Lansley - Located towards the end of a no through road and offered to the market with no onward chain complications is this, in our opinion, well presented mid terrace home. The internal accommodation comprises two reception rooms, galley kitchen, three piece bathroom and two double bedrooms whilst externally is low maintenance garden. Blenheim Gardens is conveniently located close to Reading University, regular bus routes, Royal Berkshire hospital and well regarded schooling making this, in our opinion, an excellent first time or investment purchase.