This property is not currently available. It may be sold or temporarily removed from the market.
Placeholder

Delaney Close, Tilehurst, Reading, RG30 4UY

£575,000
  • Ref: ALA260040
  • Type: Semi-Detached House
  • Availability: For Sale
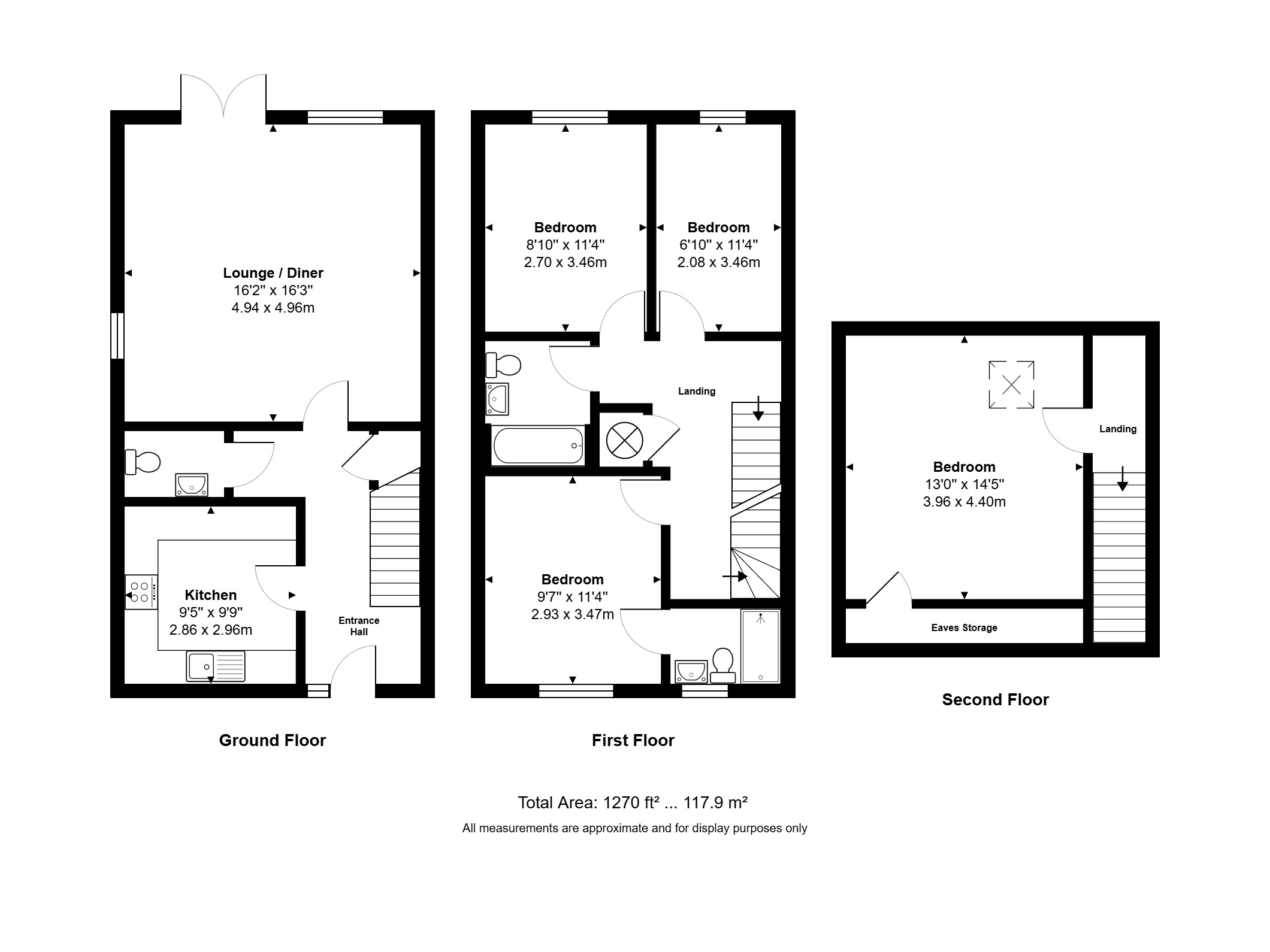
  • Bedrooms: 4
  • Bathrooms: 2
  • Reception Rooms: 1
  • Parking: Off Road Parking
  • Council Tax Band: D
  • Tenure: Freehold
  • Make Enquiry
  • Virtual Tour

Property Summary

Lansley - A brand new semi detached family home located within easy access of regular bus routes, schooling and Tilehurst village. Internal accommodation comprises four bedrooms, two bath/shower rooms, downstairs WC, kitchen with integrated appliances and lounge/diner with French doors opening out to the rear garden. Externally to the front is block paved driveway parking for a number of vehicles and side access to the sizeable rear garden laid mainly to lawn with patio area. Other notable benefits include a ten year warranty and under floor heating throughout via an air source heat pump.