Hyde End Lane, Ryeish Green, Reading, RG7 1EY
£465,000
Property Summary
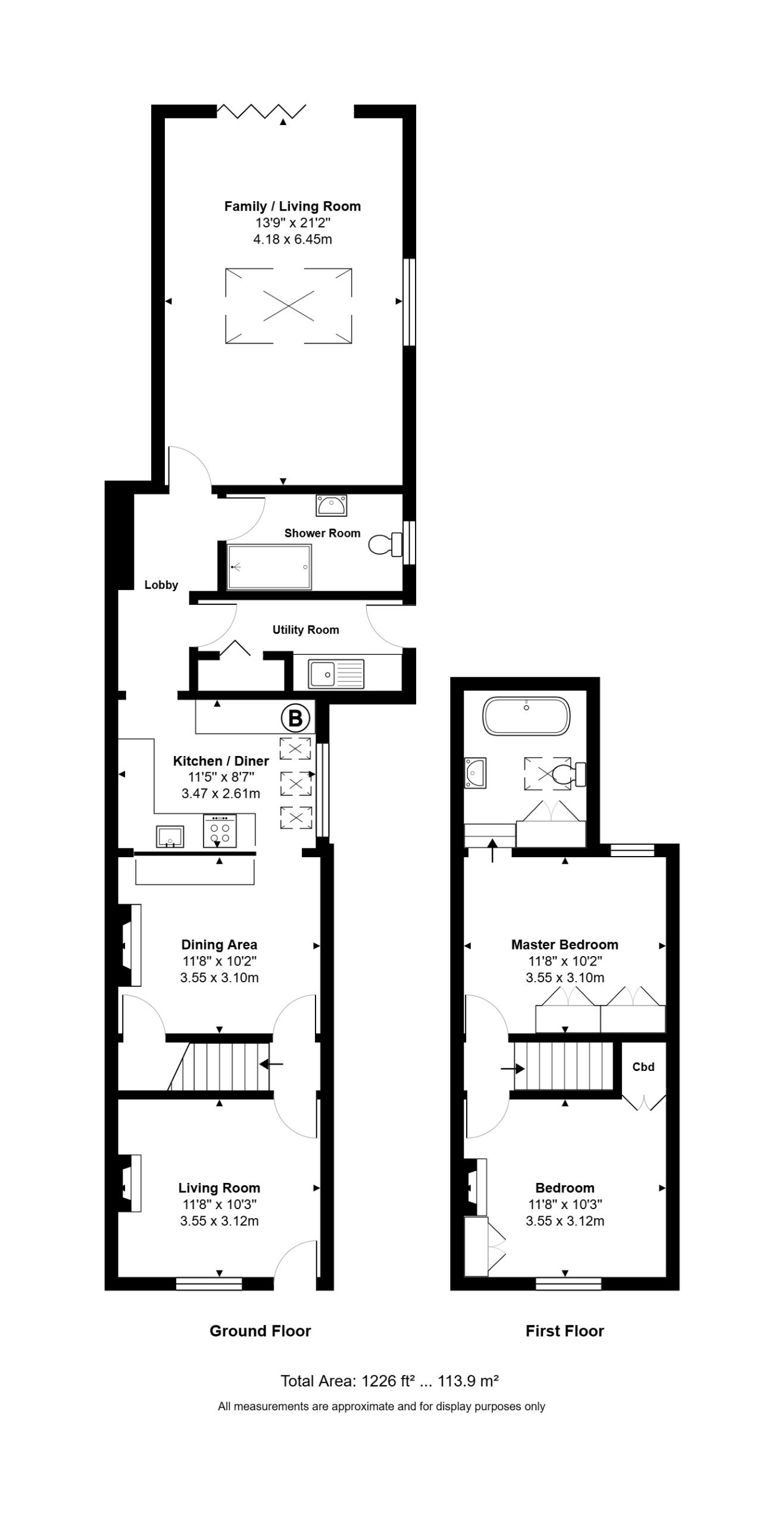
Lansley - This exceptionally well presented and extended period home is full of character and charm located within easy access of both villages Shinfield and Spencer Wood. Accommodation comprises front living room with exposed brick wall and feature fireplace, open plan kitchen diner with log burner, refitted kitchen with integrated appliances and slightly vaulted ceiling with Velux windows. Also on the ground floor is a well-equipped laundry room, shower room with walk in shower enclosure and a delightful living/family room to the rear with roof lantern and bi folding doors overlooking the rear garden. On the first floor there is a master bedroom with refitted ensuite bathroom and fitted wardrobes and second bedroom also with fitted wardrobes. Externally to the front the property overlooks fields with off road parking. To the rear of the property there is an expansive enclosed rear garden mainly laid to lawn with decking area.





























