Keswick Close, Tilehurst, Reading, RG30 4SD
£450,000
Property Summary
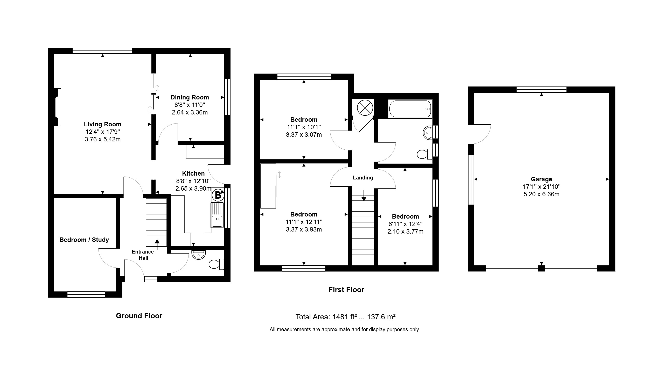
Lansley - Offered to the market with no onward chain complications is this semi detached family home sitting on a larger than average plot. The internal accommodation comprises entrance hall, study/bedroom four, lounge/diner, separate kitchen, downstairs WC, three further bedrooms and family bathroom. Externally to the front is off road parking for a number of vehicles leading to a detached double garage whilst to the rear is a large garden laid mainly to lawn with patio area. The property offers the new owner potential to extend or further develop subject to the usual planning consents. Keswick Close is conveniently located within an easy level walking distance of Tilehurst village which offers a range of amenities, regular bus routes, local schooling and supermarkets.





























