Southcote Lane, Reading, RG30 3AD
£550,000
Property Summary
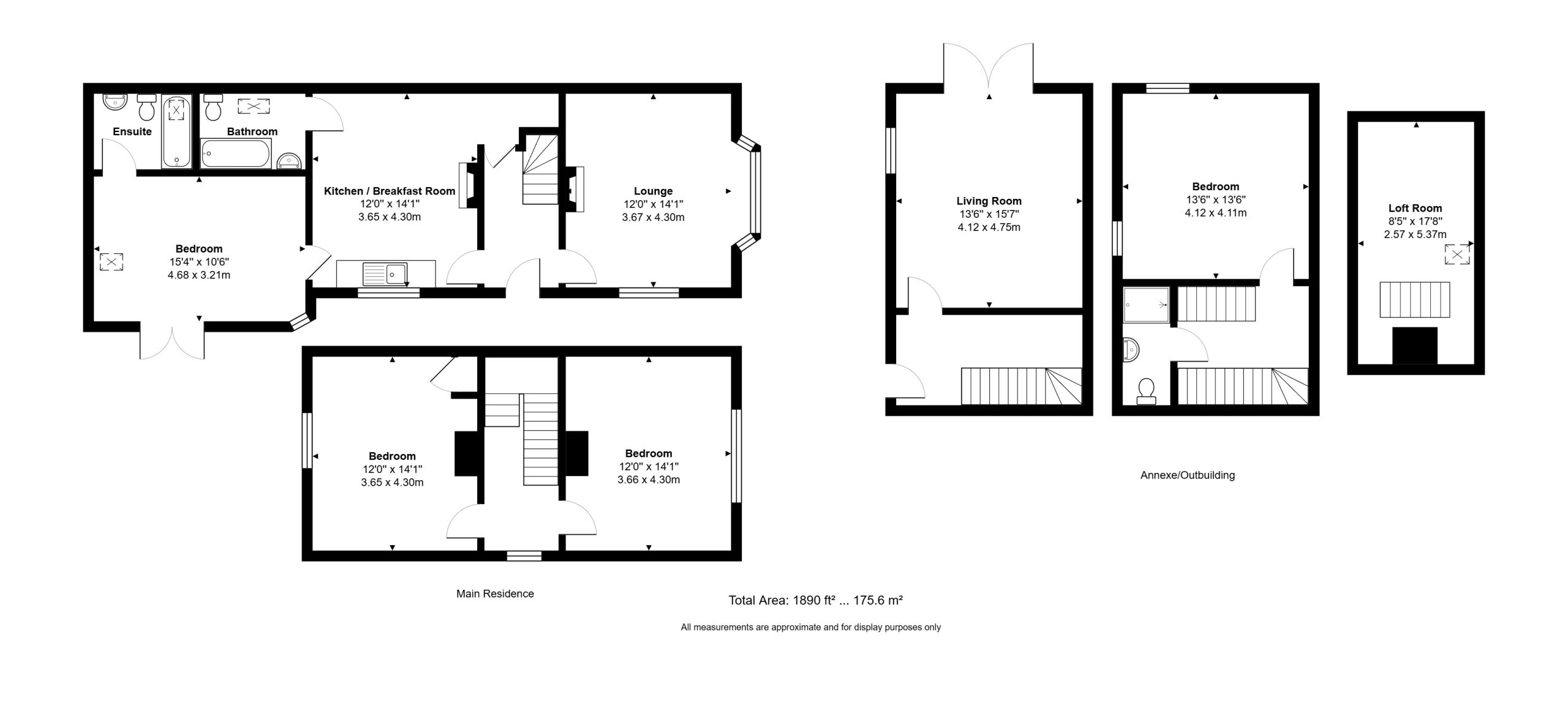
Lansley - Dating back to 1887 Rotherfield Cottage is a charming detached family residence that was orginally part of the Rotherfield Grange and was the gardeners cottage. One of only three original buildings remaining this home is offered for sale with no onward chain complications. The internal accommodation comprises three double bedrooms, front aspect lounge, kitchen/diner and two bathrooms in the main residence plus a separate outbuilding that would be perfect as an annexe or separate work from home space with lounge/diner on the ground floor, bedroom and shower room on the first floor plus a bonus loft room. Externally is off road parking and an enclosed garden. Southcote Lane is conveniently located close to regular bus routes into Reading town centre and Reading train station, well regarded schooling and a range of supermarkets making this an excellent and adaptable family home.

































