Virginia Way, Reading, RG30 3QJ

£150,000
  • Ref: ALA250419
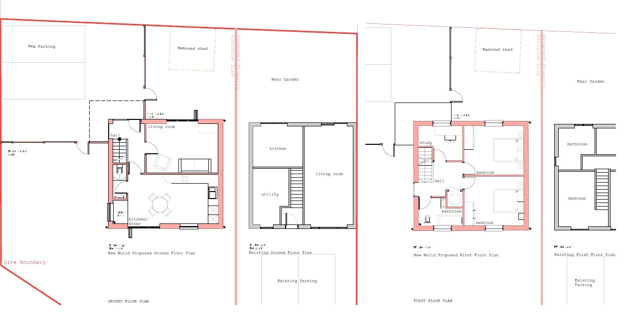
  • Type: Land
  • Availability: Under Offer
  • Bedrooms: 3
  • Bathrooms: 1
  • Reception Rooms: 1
  • Tenure: Freehold
  • Make Enquiry

Property Summary

Lansley - A plot of land for sale with full planning consent to build a detached three bedroom dwelling. For more information please see: https://publicregister.reading.gov.uk/pr/s/planning-application/a0zP2000004QUo9IAG/pl241430?c__r=Arcus_BE_Public_Register&tabset-7417a=3

Or search via Reading Borough Council website with the planning application number: Planning Application
PL/24/1430