Virginia Way, Reading, RG30 3QJ

£375,000
  • Ref: ALA240221
  • Type: Semi-Detached House
  • Availability: Under Offer
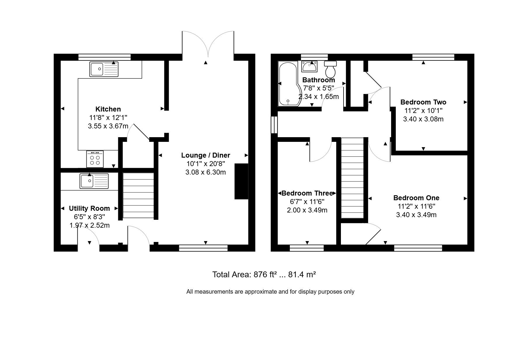
  • Bedrooms: 3
  • Bathrooms: 1
  • Reception Rooms: 1
  • Tenure: Freehold
  • Make Enquiry
  • Floorplan
  • View EPC
  • Virtual Tour

Property Summary

Lansley - Offered to the market with no onward chain complications is this, in our opinion, very well presented semi detached family home. The internal accommodation comprises lounge/diner, refitted kitchen, separate utility room, three bedrooms and refitted family bathroom. Externally to the front is driveway parking for a number of vehicles and side access to the low maintenance and private rear garden. Virginia Way is conveniently located close to regular bus routes, local schooling, Prospect Park and a range of local supermarkets making this an excellent family home.