Home Farm Close, Reading, RG2 7TD
£350,000
Property Summary
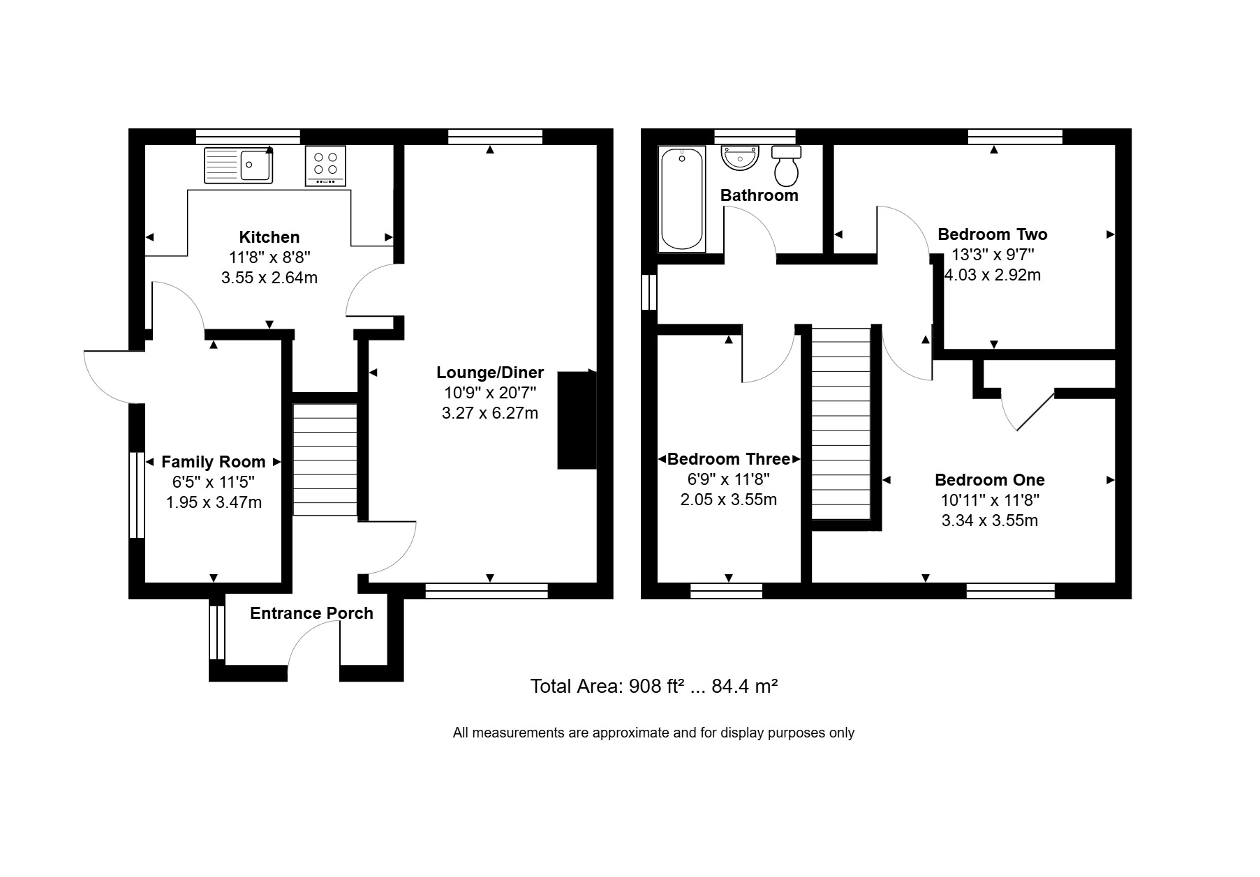
Lansley - Offered to the market with no onward chain complications is this spacious end of terrace home with a sizeable plot located to the south of Reading town centre. The internal accommodation comprises 20' lounge/diner, kitchen, separate family room, three bedrooms and family bathroom whilst externally is off road parking to the front, with covered side access to the generous rear garden laid mainly to lawn. The property offers any new owner the potential to extend STPP. Home Farm Close is conveniently located close to regular bus routes, local schooling, Green Park and J11 of the M4 making this an excellent family home. All services/appliances have not, and will not be tested.

















